Box / posti auto in vendita

Trieste, box auto via del rivo - San Giacomo
€ 105.000
Prezzo aggiornato
75 Mq 75 Mq

Box / posti auto in vendita

Trieste, box auto via del rivo - San Giacomo

Descrizione annuncio

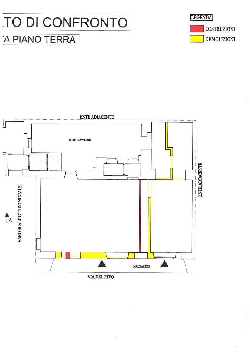
PIAZZA PUECHER - In zona centralissima e con particolare difficoltà di reperimento di parcheggi siamo a proporre due box auto di ampia metratura: i due immobili godono di ingresso indipendente e sono dotati di acqua e luce.

Il primo box si sviluppa su un totale di 38 mq e risulta adatto al parcheggio anche di grandi mezzi quali furgoni e similari grazie alla generosa altezza e profondità, possibile persino soppalcare l'ambiente in modo da sfruttare appieno altezza e profondità. A servizio del box ed a completamento della prima proprietà vi è anche un bagno completo con accesso diretto dal box medesimo ed ulteriore vano magazzino di 4mq con accesso dalla corte condominiale.

Il secondo box si dispone su di un totale di 31 mq ed è dotato di un ampio vano accessorio attiguo e comunicante al box ove collocare ulteriori mezzi o materiale di qualunque sorta. Anche il secondo box si presta all'installazione di un soppalco vista la considerevole altezza.

Il progetto di realizzazione dei due box è già stato approvato dal comune di Trieste con annesso passo carrabile. Oltretutto, l'assemblea condominiale ha già deliberato l'autorizzazione alle modifiche necessarie all'ottenimento dei due accessi indipendenti ed alla variazione di destinazione d'uso degli ambienti.

I costi di realizzazione risultano contenuti e l'opera edile è di sicuro interesse commerciale vista la facilità di realizzo e la difficoltà di reperimento di box auto nella zona.

Per maggiori informazioni:
Tecnocasa San Giacomo, via dell'Istria 2b Trieste (Ts)
tel 040 2171346 - mail tscc7


- - - - -

La nostra agenzia è a vostra disposizione per una consulenza ed una valutazione gratuita del vostro immobile.

- - - - -

Le informazioni presenti nell'annuncio non costituiscono elemento contrattuale.

Mostra tutto

Nelle vicinanze

Trasporto pubblico Trasporto pubblico
Trieste Campo Marzio Smistamento
Trieste Campo Marzio Smistamento
1,7 Km
stazione di Trieste Centrale
stazione di Trieste Centrale
1,8 Km
Piazza Oberdan
Piazza Oberdan
1,3 Km
Piazza Casali
Piazza Casali
1,6 Km
Trasporto pubblico
70 m
Ricariche auto elettriche Ricariche auto elettriche
Eneldrive Ospedale Maggiore Di Trieste
870 m
EnelDrive Granatieri
1,1 Km
Eneldrive Molo Sartorio
1,5 Km
Eneldrive Comune Di Trieste - Consigli Circoscrizionali
2,0 Km
Eneldrive Carpineto
2,2 Km
Scuole Scuole
Ricreatorio Comunale Riccardo Pitteri
110 m
Scuola primaria Josip Ribičič - Karel Širok
140 m
Scuola dell'infanzia di San Giacomo
140 m
Scuola secondaria di primo grado Ivan Cankar
160 m
Scuola primaria Duca D'Aosta
200 m
Farmacia Farmacia
Farmacia Patuna
100 m
Farmacia All'alabarda
220 m
Farmacia Penso
350 m
Farmacia San Giusto
370 m
Farmacia Alla Redenzione
370 m
Ospedali Ospedali
Ospedale Maggiore
810 m
IRCCS Materno Infantile Burlo Garofolo
850 m
Sanatorio Triestino
910 m
Supermercati Supermercati
Bosco
50 m
Coop
160 m
Supermercati
190 m
COOP Trieste Istria e Friuli
200 m
La Gerla Supermercati
300 m
Negozi Negozi
Panetteria pasticceria San Giacomo
70 m
Adriamare
90 m
Verh
90 m
Old Company
100 m
Mondo pane
120 m
Bar Bar
New Green Bar
170 m
Dalle Cugine
180 m
Bar Sansovino
370 m
Jekabar
410 m
Old Corner
470 m
Ristoranti Ristoranti
Pizzeria La Tana
80 m
Zenzero e Cannella
100 m
Pizzeria La Nuova Lanternina
100 m
La cucina di Bea e Benny
200 m
Casa del Popolo
340 m
Mostra tutto

Caratteristiche

Rif.:
61129462
Piano:
Terra di 4
Totale piani:
4
Arredamento:
Assente
Condizionamento:
Assente
Ascensore:
No
Mostra tutto
Prezzo Prezzo
€ 105.000
Rata mutuo Rata mutuo
€ 495 / mese
Proponi il tuo prezzoProponi il tuo prezzo

Classe Energetica

Questo immobile è esente da classe energetica
Anno di costruzione:
1900
Riscaldamento:
Assente

Prezzo ridotto di €1 (16%%)

Ti interessa visionare l'immobile?

Fissa un appuntamento  Fissa un appuntamento

Richiedi informazioni

Clicca su Leggi per aprire l'informativa
* Questi campi sono obbligatori

Calcola il tuo mutuo

Semplice e senza impegno
Anticipo

( % )
Mutuo

( % )

pochi semplici passi

inserisci i tuoi dati
Questionario completato
Grazie per aver richiesto un appuntamento senza impegno con un nostro Consulente del Credito e Assicurativo.

Hai inserito correttamente tutti i dati necessari e a breve riceverai una e-mail con un link da convalidare per inviare i tuoi dati.
Affiliato
Studio 3 Srl
Via Dell'Istria , 2/B 34133 Trieste (TS)

Il nostro staff


  • Alessio Pusizi
    Collaboratore

  • Mame Asta Thiam
    Collaboratrice

  • Dario Esposito
    Affiliato
Via Dell'Istria , 2/B 34133 Trieste (TS)
Zona: San Giacomo-San Giusto-Campi Elisi
Mostra su mappa
Orari: da lunedì al venerdì dalle 9.00 alle 13.00 e dalle 15.30 alle 19.00; sabato e domenica chiuso.
Affiliato
Studio 3 Srl
Via Dell'Istria , 2/B 34133 Trieste (TS)

2026 Tecnocasa Franchising S.p.A. - P. IVA 08365160152 - Via Monte Bianco 60/A 20089 Rozzano (MI). Ogni agenzia ha un proprio titolare ed è autonoma. Privacy policy | Policy utilizzo | Cookie policy