Bilocale in vendita

Trieste, via campanelle - Campanelle
€ 115.000
Prezzo aggiornato
2 locali 2 locali
50 Mq 50 Mq

Bilocale in vendita

Trieste, via campanelle - Campanelle

Descrizione annuncio

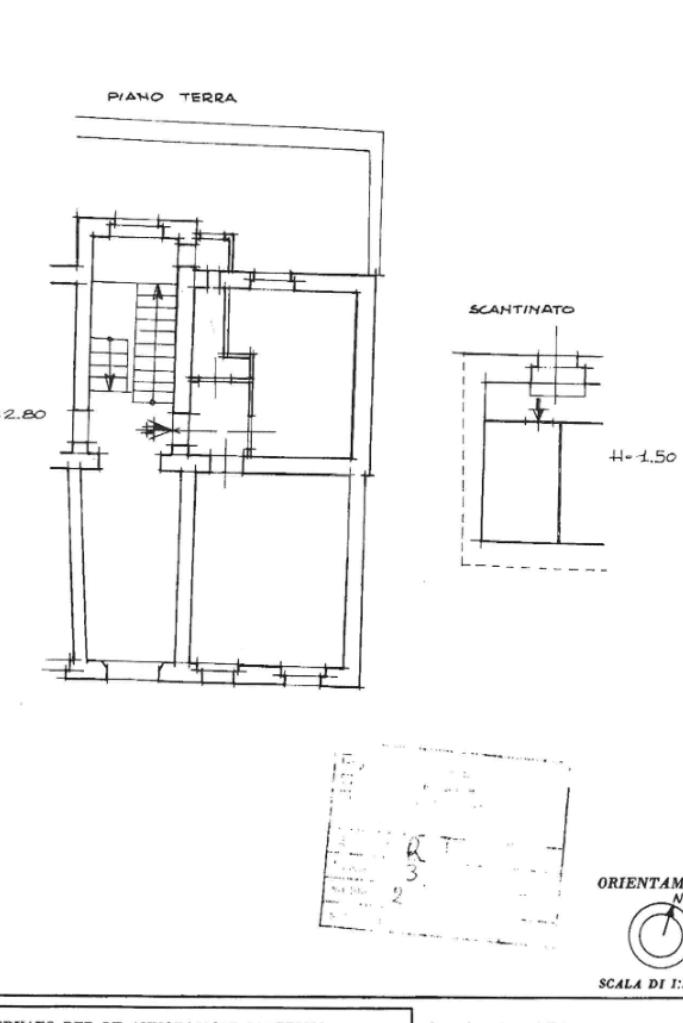
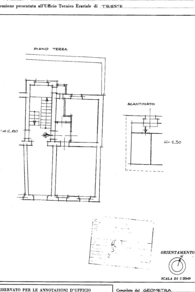
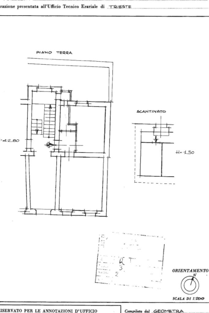
CAMPANELLE - Alloggio di 50 mq sito in grazioso stabile di solo 4 unità abitative le quali permenttono di avere delle spese condominiali ridottissime, collocato in una zona defilata dal traffico e circondata dal verde, collegatissima con il centro grazie alla linea autobus a due passi dalla casa e alla pista ciclabile Giordano Cottur.

Composto da: un ampia zona giorno con cucina, una camera matrimoniale, un bagno finestrato, cantina e di un area estrena condominiale ad uso comune. L'immobile è stato completamente ristrutturato, viene fornito con doppi split inverter per l'aria condizionata fredda/calda, porta bilndata e serramenti nuovi.

Viene venduto completamente arredato sia del mobilio e di tutti gli elettrodomestici, comprese le TV presenti.

L’edificio è privo di barriere architettoniche.

Per maggiori informazioni contattaci pure: allo 040/2171346 presso il nostro ufficio Tecnocasa San Giacomo di via dell'istria 2/b o sulla nostra email tscc7

Mostra tutto

Nelle vicinanze

Trasporto pubblico Trasporto pubblico
Trieste Campo Marzio Smistamento
Trieste Campo Marzio Smistamento
2,4 Km
Trieste Aquilinia
Trieste Aquilinia
2,6 Km
Piazza Oberdan
Piazza Oberdan
2,2 Km
Piazza Casali
Piazza Casali
2,5 Km
Trasporto pubblico
170 m
Ricariche auto elettriche Ricariche auto elettriche
Eneldrive Carpineto
1,5 Km
Eneldrive Ospedale Maggiore Di Trieste
1,7 Km
EnelDrive Granatieri
2,1 Km
Eneldrive Comune Di Trieste - Consigli Circoscrizionali
2,2 Km
Eneldrive Molo Sartorio
2,5 Km
Scuole Scuole
Oratorio Maria Ausiliatrice
370 m
Scuola Materna Comunale Giorgio Pollitzer
380 m
Scuola Primaria Statale San Giusto martire
450 m
Scuola media statale Antonio Bergamas
460 m
Scuola primaria Scipio Slataper
580 m
Farmacia Farmacia
Farmacia Alla Maddalena
650 m
Baiamonti
680 m
Farmacia Rubino
690 m
Farmacia All'alabarda
830 m
G.B. Busolini
890 m
Ospedali Ospedali
IRCCS Materno Infantile Burlo Garofolo
350 m
Sanatorio Triestino
1,1 Km
Ospedale Maggiore
1,6 Km
Supermercati Supermercati
Eurospar
270 m
Dpiù
300 m
Supermercati
420 m
Lidl
510 m
La Gerla Supermercati
540 m
Negozi Negozi
Negozi
520 m
CRAI supermercati la beccheria
610 m
Piazza Italia
690 m
Verh
960 m
Old Company
980 m
Bar Bar
Bar Esso
410 m
Bar Wayra
480 m
Bar Movida
590 m
Panificio-Caffè Viezzoli
650 m
Bar ''Junior''
660 m
Ristoranti Ristoranti
''Al Moro''
340 m
Trattoria Osteria alle Vecchie Glorie
400 m
Pizzeria Braceria all'Abbuffata
430 m
L'Ambasciata D'Abruzzo
570 m
La Cantinaccia
580 m
Mostra tutto

Caratteristiche

Rif.:
61191344
Piano:
1 di 2 (Piano basso)
Camere da letto:
1
Arredamento:
Completo
Condizionamento:
Autonomo
Ascensore:
No
Mostra tutto
Prezzo Prezzo
€ 115.000
Rata mutuo Rata mutuo
€ 545 / mese
Spese annue Spese annue
€ 0
Proponi il tuo prezzoProponi il tuo prezzo

Altre caratteristiche

Classe Energetica

G
G
G
G
G
G
G
G
G
EP globale rinnovabile:
293.19 kW h/m² anno
EP invernale del fabbricato:
EP estiva del fabbricato:
Anno di costruzione:
1900
Riscaldamento:
Autonomo
Tipo impianto:
A radiatori
Tipo alimentazione:
Metano

Prezzo ridotto di €1 (5%%)

Ti interessa visionare l'immobile?

Fissa un appuntamento  Fissa un appuntamento

Richiedi informazioni

Clicca su Leggi per aprire l'informativa
* Questi campi sono obbligatori

Calcola il tuo mutuo

Semplice e senza impegno
Anticipo

( % )
Mutuo

( % )

pochi semplici passi

inserisci i tuoi dati
Questionario completato
Grazie per aver richiesto un appuntamento senza impegno con un nostro Consulente del Credito e Assicurativo.

Hai inserito correttamente tutti i dati necessari e a breve riceverai una e-mail con un link da convalidare per inviare i tuoi dati.
Affiliato
Studio 3 Srl
Via Dell'Istria , 2/B 34133 Trieste (TS)

Il nostro staff


  • Giorgia Gazzetta
    Collaboratrice

  • Daria Sperotto
    Coordinatrice

  • Dario Esposito
    Affiliato
Via Dell'Istria , 2/B 34133 Trieste (TS)
Zona: San Giacomo-San Giusto-Campi Elisi
Mostra su mappa
Orari: da lunedì al venerdì dalle 9.00 alle 13.00 e dalle 15.30 alle 19.00; sabato e domenica chiuso.
Affiliato
Studio 3 Srl
Via Dell'Istria , 2/B 34133 Trieste (TS)

2026 Tecnocasa Franchising S.p.A. - P. IVA 08365160152 - Via Monte Bianco 60/A 20089 Rozzano (MI). Ogni agenzia ha un proprio titolare ed è autonoma. Privacy policy | Policy utilizzo | Cookie policy